Plantas de Casas Pequenas – 55 Ideias Geniais + Dicas Inéditas!
A primeira coisa a ser feita por quem vai realizar o sonho de construir sua casa própria é a projeção do modelo de casa que deseja por meio de uma planta. Independente de ser um dos modelos de plantas de casas pequenas ou de qualquer outro tamanho o projeto deve ser feito por um engenheiro para que ele avalie se tudo o que deseja para o novo lar é viável e conseguirá aprovação.
Existem diversos programas que podem ser usados para elaboração de um projeto. Porém apenas um engenheiro junto ao arquiteto tem todo o conhecimento necessário para criar uma casa que tenha tudo o que sonhou de acordo com as regras estipuladas pela prefeitura. É fundamental que a planta esteja adequada as exigências feitas para estrutura e os tipos de materiais que serão utilizados.
Está em busca de modelos de plantas de casas pequenas? Nesse post separamos 60 ideias incríveis para quem sonha com uma casa pequena, moderna e aconchegante.
Tópicos
Modelos de Plantas de Casas Pequenas
As plantas de casas pequenas não tem um tamanho padrão para cada comodo da casa. Isso porque a definição de pequeno é muito relativa, ou seja, o que é pequeno para alguns pode não ser para outros. Mas pensando de uma forma geral é possível definir como pequeno casas que possuam até 3 quartos com tamanhos semelhantes entre eles e também aos demais cômodos.
Para se inspirar e desenvolver o projeto perfeito, separamos a seguir por categorias plantas de casas pequenas com cozinha americana, varanda , garagem e diferentes quantidades de quartos para que possa se inspirar e desenvolver o projeto perfeito para a sua casa.
Plantas de Casas Pequenas com 1 Quarto
As casas com 1 quarto são a opção perfeita para casais recém casados, pessoas solteiras e para quem deseja construir para locação focada em estudantes.
Por mais que seja pequena a casa com 1 quarto pode ser super aconchegante e construída em qualquer tipo de terreno.
Outra vantagem em optar por uma casa pequena com 1 quarto é a facilidade para organização. Nesse tipo de casa é fundamental ter apenas o necessário, com isso evitando excessos de objetos desnecessários.
A seguir separamos algumas opções de plantas de casas pequenas com 1 quarto para se inspirar e ver como pode ser prático investir em um modelo de casa com essa característica.
Com Cozinha Americana
A cozinha americana é o modelo de cozinha que não está projetada entre quatro paredes. Esse modelo de cozinha se conecta a outros ambientes, geralmente a sala na grande maioria das plantas de casas pequenas.
A principal característica da cozinha americana é o balcão feito com meia parede e uma pedra em cima que. Além de servir como divisória o balcão também é utilizado como uma área comum para refeições.
Uma das principais vantagens em optar por esse modelo de cozinha em um projeto de casa pequena é que a cozinha americana proporciona modernidade.
Para se inspirar separamos a seguir alguns modelos de plantas de casas pequenas com cozinha americana.

Esse é um modelo de casa pequena, funcional e moderna com conceito aberto. É uma casa pequena, porém arrumada e com uma excelente união das áreas comuns da casa. Se você é solteiro ou está planejando seu lar com a pessoa amada esse modelo de planta pode ser uma ótima referência para se inspirar.

Morar em uma casa pequena deixou de ser considerado como algo inferior. Hoje em dia as casas pequenas são vistas como um sinônimo de praticidade, principalmente por quem reside em áreas centrais e apartamentos.
Uma das principais vantagens em optar por uma casa menor é a economia. Além de economizar em diferentes sentidos, optar por uma casa pequena é super vantajoso para quem busca algo fácil de decorar.


Esse é um dos modelos de plantas de casas pequenas perfeito para um casal recém casado. Essa é uma casa prática com 1 quarto e cozinha americana. A arrumação dos móveis é moderna e de fácil manutenção da organização. Não tem como negar que essa é uma ótima opção para quem tem a rotina corrida.



Quando falamos de plantas de casas pequenas também estamos falando do melhor aproveitamento do terreno. No mundo ideal teríamos muita metragem, mas os terrenos estão cada vez menores, principalmente em áreas mais valorizadas das cidades.
Considerando a metragem é necessário pensar nas necessidades da família. Uns preferem uma casa menor e ter mais quintal enquanto outros optam por mais espaço interno. Por isso o conceito de casa pequena é tão relativo.

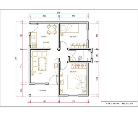
Plantas de Casas Pequenas com 2 Quartos
De forma geral as plantas de casas pequenas com 2 quartos são projetadas com até 2 unidades de banheiros. Sendo um com a finalidade do uso comum e o outro para a suite.
Geralmente nesse modelo de projeto economiza na área da casa para que com isso tenha sido feita uma boa economia financeira após a construção.
Uma ótima opção para quem vai construir uma casa pequena com 2 quartos é optar pela cozinha americana. Permitindo com isso que a integração entre os espaços se torne uma grande vantagem para o uso. Fazendo essa integração o ambiente fica visualmente maior e a iluminação natural predomina entre os espaços.
Para se inspirar abaixo separamos alguns modelos de plantas de casas pequenas com 2 quartos.
Com Cozinha Americana
A cozinha americana vai além de um bom aproveitamento do espaço. Um balcão bonito separando os dois ambientes deixa o local mais charmoso, principalmente quando o balcão está em harmonia com as demais características.



Com a correria do dia a dia a rotina das famílias mudou bastante. Os horários das refeições quase nunca batem e por isso um balcão como mesa de apoio pode ser a opção certa para otimizar o espaço no lugar da tradicional mesa de jantar. O ambiente fica com uma cara mais moderna e despojada.






Com Varanda
A varanda é um espaço extra que rende bons momentos em família e com os amigos. No Brasil a maior parte das cidades são extremamente quentes no verão, assim a varanda é uma forma de fugir do calorão sem precisar sair de casa.




O tamanho da varanda vai depender diretamente da metragem do terreno. Em algumas plantas você pode observar que a varanda é acessada pelos dois quartos em quanto em outras só atende ao quarto principal.
Plantas de Casas Pequenas com 3 Quartos
Ao analisar modelos de plantas de casas pequenas com 3 quartos podemos ver que relacionado a dimensão da casa não existe tanta diferença quando comparada como modelos de casas com 1 e 2 quartos.
O diferencial na grande maioria das casas com 3 quartos é o número de banheiros, principalmente quando o projeto é elaborado com mais de 1 suite.
Um detalhe que também é comum é a cozinha americana.
Geralmente na maioria dos projetos a quantidade de banheiros não passa de 2 para que os outros cômodos possam ser beneficiados no tamanho.
Veja a seguir alguns modelos de casas com 3 cômodos para se inspirar e encontrar a opção que mais tem a ver com o que deseja para o seu projeto.
Com Cozinha Americana
O tamanho da cozinha americana em plantas de casas pequenas é o mesmo, independente da quantidade de quartos. É necessário pensar em espaço para armazenamento e obviamente para cozinhar com conforto.









Plantas de Casas Pequenas e Modernas
As plantas de casas pequenas precisam ser pensadas para serem modernas e terem a melhor otimização de espaço possível.
Construir uma casa pequena e simples não significa deixar a modernidade de lado. Confira as nossas dicas para apostar na planta certa:
A cozinha fica muito mais moderna com espaço para embutir o fogão e divisória para a lavanderia. Além disso, a pedra usada na cozinha também faz toda diferença.
Pense nas cores dos armários para escolher uma pedra que tenha boa harmonização. Outra opção é a pia de inox, muito usada no Brasil.
Simples e Baratas
Existem muitas dicas simples para economizar na hora de construir. Uma delas é o conceito aberto que pode envolver a sala de estar, sala de jantar e a cozinha.
Menos paredes significa menos mão de obra, menos material e menor tempo de construção. Ótimo, né? Além disso o espaço fica otimizado e ganha muita luz natural.

Quando vamos comprar piso é possível conseguir desconto quando a metragem é maior. A dica é investir no mesmo piso das áreas interligadas, como sala de estar, sala de jantar e cozinha.
Você pode escolher outro piso para os quartos e uma terceira opção para usar no banheiro. As cores claras deixa o ambiente mais clean e a luz natural fica em evidência.










Com dinamismo na planta uma cada com até 70 metros quadrados pode ser confortável para uma família de quatro ou cinco pessoa. Em família desse tamanho é melhor pensar em 3 quartos pequenos que dois quartos grandes, assim cada integrante da família preserva a sua privacidade e a casa como um todo fica mais organizada.


Uma dica bacana é deixar o banheiro entre os dois dormitórios, fazendo que os dois tenham a mesma distância.


Com Garagem
A casa com garagem é mais valorizada que uma casa sem garagem, tanto na hora de vender quanto para alugar. Para uso próprio também é importante investir em uma garagem coberta, afinal, vai dar mais segurança para o seu veículo e protege a pintura da ação do sol e da chuva. A longo prazo vale a pena o investimento.



Em plantas para casas pequenas geralmente há apenas uma vaga de garagem. A garagem pode ser estreita, mas deve ser pensada para que uma pessoa passe ao lado sem grande dificuldade.

Gostou das nossas ideias e dicas para plantas de casas pequenas? Tem alguma dica que não colocamos aqui? Deixe o seu comentário.






