Plantas de Casas com 2 Quartos – 60 Modelos Geniais e Gratuitos!
Fazer plantas de casas com 2 quartos nem sempre é uma missão fácil, pois geralmente são metragens pequenas e existe a necessidade de otimizar os espaços o máximo possível.
Para desenhar plantas baixas é essencial contar com o apoio de um arquiteto, porém as plantas de casas com 2 quartos que vamos mostrar vão ajudar a dar uma ideia do que precisa e assim conseguir transmitir a ideia para o profissional. Nesse post vamos mostrar 60 modelos de plantas de casas térreas com 2 quartos com muitas dicas para um bom aproveitamento da metragem do terreno.
Tópicos
Modelos de Plantas de Casas com 2 Quartos
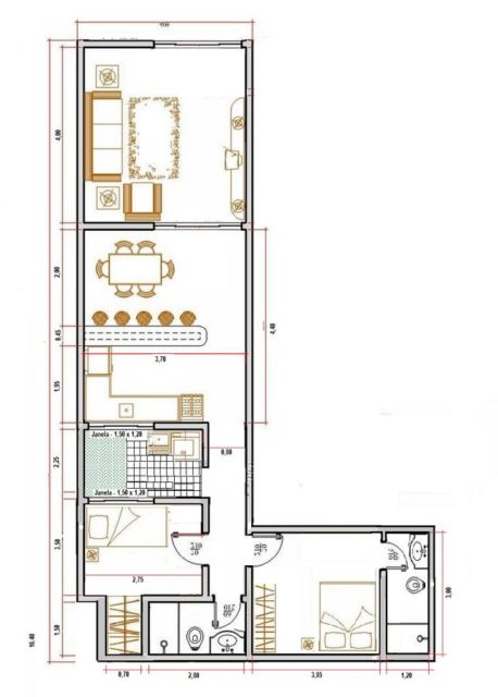
Quando pensamos em plantas de casas com 2 quartos geralmente estamos falando em duas limitações: terreno pequeno ou baixo orçamento para construir uma casa maior. A boa notícia é que em ambos os casos é possível construir uma casa bonita, de qualidade e super funcional.
As plantas de casas com 2 quartos são ideias para famílias que estão começando ou famílias pequenas com um ou dois filhos. Sempre ao planejar uma construção é o desenho da planta que vem primeiro.
Na internet existem muitos modelos de plantas de casas com 2 quartos e até programas que ajudam a fazer, porém somente engenheiros e arquitetos podem validar essa planta. A nossa dica é escolher o modelo que mais se aproxima do que deseja e apresentar para o profissional. Bora ver algumas ideias?
Casas em L
Quando pensamos em construir uma casa para morar temos que pensar também no estilo de vida dos moradores. As plantas de casas com 2 quartos em L podem ter os cômodos menores, mas é uma ótima maneira de aproveitar o terreno e deixar espaço para uma pequena piscina, uma jardim ou uma horta.
Quem gosta de receber amigos e familiares pode ter um espaço para a construção de uma varanda com churrasqueira. A funcionalidade deve vir em primeiro lugar, mesmo casas de 40 metros quadrados podem ser funcionais e confortáveis deixando espaço extra para o quintal.
Quer se inspirar com modelos incríveis de casas em L? Confira o post especial que preparamos com 40 projetos lindíssimos. Nele você pode conferir dicas de casas com lindas fachadas, varandas, piscinas e muito mais!










Plantas de Casas com 2 Quartos e Cozinha Americana
A cozinha americana é uma forma de otimizar o espaço, mas também promove maior socialização. Temos a cultura de reunir familiares para fazermos as refeições juntos, conversar sobre o dia e trocar experiência. Com a cozinha americana a pessoa que está cozinhando não fica isolada do restante da família.
Além disso, o balcão que separa os ambientes pode ser acrescido de banquetas para que a família faça refeições rápidas no dia a dia, como café da manhã ou um lanchinho durante a tarde.












Com Garagem
Ter uma garagem é uma preocupação recorrente na hora de fazer a planta. Toma um espaço significativo da metragem do terreno, mas garante que não terá dores de cabeça no futuro com roubos e ajuda a valorizar o imóvel. Grande parte dos brasileiros tem carro e/ou moto e a garagem é uma preocupação na hora de comprar ou alugar um imóvel.
Na maioria das plantas de casas com 2 quartos a garagem é apenas para um carro. É necessário deixar espaço suficiente para transitar entre as laterais quando o carro estiver na garagem.

Engana-se quem pensa que a garagem é um espaço usado apenas com o intuito de guardar o carro, ao contrário do que muitos pensam é possível otimizar esse espaço e torná-lo super funcional.
Em garagens de casa é possível investir em diferentes detalhes para otimização do ambiente. Um dos detalhes mais comuns que podemos encontrar nos modelos de plantas de casas com 2 quartos e garagem é uma pequena oficina na qual podem ser acomodadas todas as ferramentas e itens utilizados para a manutenção do veículo.
Outras opções muito criativas para aproveitar melhor a garagem é investir em um pequeno home office ou uma lavanderia. Aproveitar os espaços da garagem da melhor forma possível é uma ótima maneira de valorizar o terreno e poder executar diferentes atividades do dia a dia de forma tranquila e confortável.











Com Suíte
A configuração padrão de plantas de casas com 2 quartos tem apenas um banheiro, mas é necessário pensar na funcionalidade dessa residência. Por exemplo, uma família com 4 pessoas fica inviável dividir um único banheiro. A solução é uma suíte no quarto principal e um banheiro social que será usado pelas crianças e pelas visitas. Quem ver como aproveitar uma metragem pequena e ainda fazer uma suíte? Veja nossas ideias:

Não tem como negar que o sonho de quem está construindo seu cantinho é deixar a casa, com o máximo de conforto e comodidade possível. Um dos principais sonhos de grande partes dos casais é poder desfrutar de um quarto bonito, confortável e funcional. Por isso é cada vez mais comum mesmo em projetos menores como as plantas de casas com 2 quartos vermos que a maioria das pessoas opta por fazer um dos quartos suíte.
Para deixar sua suíte linda com tudo o que tem direito invista em detalhes diferentes e harmoniosos que tenham tudo a ver com seu gosto, afinal, esse é o seu espaço.

Um ponto importante que deve ser analisado na hora de escolher um dos modelos de plantas de casas com 2 quartos é pensar no tamanho da cama que deseja para sua suíte. A cama é o móvel mais importante do quarto, por isso é importante pensar que vale a pena otimizar o espaço para investir em um móvel confortável com boa qualidade.
Considere sua cama como um grande investimento para os cuidados com seu corpo, pois como sabelos o sono é muito importante para que possamos lidar com a rotina do dia a dia.
Grande parte dos modelos de suítes que podemos encontrar em plantas de casas com 2 quartos no design a cama fica localizada na parte central do ambiente. Ao redor é importante que fique pelo menos 40 cm para que a circulação possa ser feita de forma confortável e segura sem o risco de ficar esbarrando.

É claro que não poderíamos deixar de falar do banheiro, afinal o que é uma suíte sem banheiro? Para decoração do banheiro é importante que você leve em consideração aquilo que mais sente falta no seu dia a dia.
Invista em um mobiliário bonito e funcional, afinal, é necessário otimizar o espaço para que ele se enquadre no tamanho da sua casa. Armarinhos, prateleiras e nichos são perfeitos para acomodação de toalhas, itens de higiene e beleza.
Com relação ao acabamento analise as opções que mais estão em alta e invista em algo que te agrade. Atualmente não só para o banheiro, mas também para os outros cômodos da casa a decoração clean vem fazendo muito sucesso.
Uma dica super importante para a decoração do banheiro é tomar cuidado com as escolhas que serão feitas. Não se deixe levar por apenas aquilo que for bonito, invista em coisas resistentes a água, pois esse é um ambiente úmido onde qualidade e resistência devem ser as palavras chaves para escolhas bem sucedidas.







Salas Conjugadas
Nas plantas de casas com 2 quartos com salas conjugadas a cozinha é bem menor, sendo que na maioria dos casos não cabe uma mesa para as refeições, por exemplo. A ideia desse tipo de planta é reduzir o tamanho da cozinha para sobrar espaço para a sala de estar e de jantar conjugadas.
Se formos pensar na funcionalidade de casa o ambiente fica mais amplo com as duas salas juntas, principalmente porque elas não são usadas ao mesmo tempo.

Fazer a integração de dois ambientes vem se tornando uma super tendencia para decoração de casa, principalmente pela sensação de que essa junção torna o espaço mais amplo e arejado.
Não é difícil entender porque tantos profissionais vem incluindo essa característica em seus projetos, afinal, um ambiente livre de muitas paredes deixa o espaço muito mais otimizado e permite que a imaginação possa fluir ainda mais para a criação de diferentes tipos de decorações.

Nas plantas de casas com 2 quartos com salas integradas é bem simples entender o porque de usar esse recurso de decoração. Em grande parte das plantas o terreno é pequeno e com a busca pelos melhores meios de otimizar o espaço para construir a casa dos sonhos, integrar a sala de estar e de jantar acaba que se torna uma super aliada.
Quando pensamos em um ambiente no qual as pessoas possam se sentir mais próximas logo vem a mente o conceito aberto. Unir espaços faz com que independente do local onde estejam, as pessoas possam se ver e interagir umas com as outras.

Um dos pontos mais importantes nas plantas de casas com 2 quartos nas quais as salas são conjugadas é o tipo de decoração que será feita no ambiente. Por se tratar de dois espaços que se complementam é interessante pensar em uma decoração linda, leve e que facilita a passagem de um espaço para o outro.
Uma dúvida frequente com relação as salas conjugadas é com relação a necessidade de se fazer o mesmo tipo de decoração para os dois espaços. Não é importante que as duas salas tenham exatamente a mesma decoração, porém é fundamental que haja harmonia entre as duas decorações. Afinal, a intenção nesse tipo de conceito é unir dois espaços.
Para irradiar a sensação de um espaço amplo é importante pensar durante a projeção das plantas de casas com 2 quartos que a decoração não deve ficar tão diferente uma da outra, mas que haja equilíbrio, com isso garantindo um ambiente, bonito, moderno e funcional.









Gostou das nossas plantas de casas de 2 quartos? Tem alguma ideia para otimizar o espaço que não falamos nesse artigo? Deixe o seu comentário.
