50 Plantas de Casas Populares Incríveis – Inspire-se com Modelos!

Quando se pensa em plantas de casas populares logo vem à cabeça as habitações de projetos sociais. Contudo, elas vão muito além desse estigma. São residências que condizem com a realidade do brasileiro e com o modelo de construção mais adotado aqui no país.

Sendo assim, caso você ouça falar em ‘casa popular’, pode ser que tenha a ver com o tipo de casa ‘padrão’ do Brasil. Aquele que atende às principais necessidades das famílias.

Por exemplo: casas com dormitórios para o casal e para dois filhos, de um a dois banheiros, sala, cozinha e varanda.

Solução prática para planta de casa popular com 2 quartos
Solução prática para planta de casa popular com 2 quartos

São elementos básicos e que precisam ser bem dispostos na planta para que o projeto seja bem-sucedido.

Aqui nesse post vamos explorar esse tema, bem como mostrar modelos de plantas de casas populares. Inspire-se para projetar seu lar do jeito que você sempre sonhou!

Casa popular com 3 dormitórios

Modelos de Plantas de Casas Populares

O projeto de uma casa é algo muito particular. Dessa forma, pode variar muito conforme o desejo de cada pessoa / família.

Mas geralmente as plantas giram em torno de um mesmo complexo de cômodos.

  • Dormitórios
  • Sala
  • Banheiro
  • Cozinha
  • Varanda
  • Garagem

Esses são os componentes essenciais de uma casa popular no Brasil. Mas de acordo com cada projeto, deve mudar a disposição deles ou serem adicionados outros cômodos.

Casa popular com 3 dormitórios
Casa pequena, mas com 3 quartos

Tudo depende de como é a estrutura familiar, bem como da área disponível para construção, do orçamento, do estilo de arquitetura adotado, entre outros quesitos importantes.

A saber, para construir uma casa, é necessário obter uma licença da prefeitura local. Serão feitas vistorias para possíveis autorizações que possam ser necessárias, primordiais para que você não tenha problemas no futuro. Corra atrás de todos os documentos e permissões.

Assim que estiver tudo ok com a área a ser construída, você já pode dar prosseguimento à planta de sua casa. Vale lembrar que ela também deve ser apresentada aos órgãos de habitação, comprovando que a construção será dentro da lei, sem nenhum risco humano ou à natureza.

A seguir vamos listar dois tópicos referentes aos tipos de casas populares mais procurados no Brasil. Acompanhe e tire suas dúvidas!

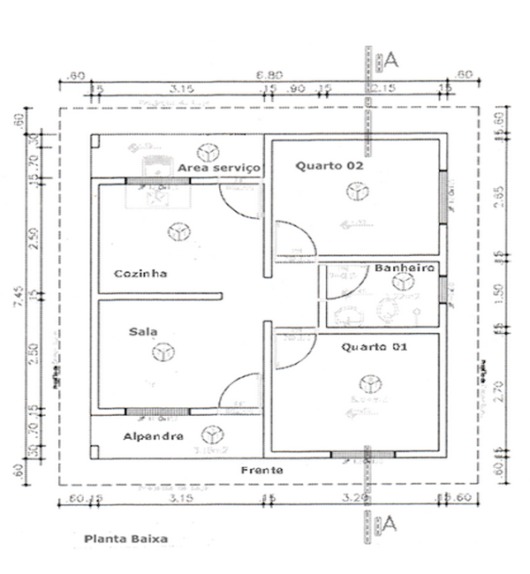
Com 2 Quartos

A cada de dois quartos é, talvez, a que mais encontramos no Brasil, principalmente nas grandes cidades.

Ela reflete ao tamanho médio da família brasileira = 1 casal e 2 filhos. Dessa forma, uma casa com dois dormitórios é a ideal para esse formato.

Além disso, pode ser uma ideia para aqueles que desejam 1 dormitório e 1 escritório. Ou até mesmo 1 dormitório e 1 quarto de hóspedes.

O espaço limitado pede agrupamento de ambientes
O espaço limitado pede agrupamento de ambientes

A realidade é que, quando pensamos em uma casa com dois dormitórios, vem à cabeça a residência com o espaço adequado para a maioria das famílias.

É importante dizer, no entanto, que aqui nesse post estamos focando em casas populares. Por isso, você verá aqui plantas com dois dormitórios, mas em projetos simples, sem elementos rebuscados.

plantas de casas populares de 2 quartos
Planta simples de 2 quartos

plantas de casas populares de 2 quartos

  • Como dividir as plantas de casas populares de dois quartos?

Essa é uma questão essencial na hora de elaborar um projeto arquitetônico.

Afinal, a partir da divisão na planta, é determinada toda a dinâmica da vivência dentro de uma casa. Além de ser bonita, com bom espaço, é necessário atender às necessidades dos moradores por completo. Ou seja, a casa deve ser funcional.

Portanto, pense bem como você irá dispor os cômodos da casa onde irá morar (ou construir para alugar, por exemplo).

Um formato muito utilizado é a divisão da casa entre a área íntima, com os quartos e banheiros da família; e a área social, que se refere aos cômodos que são frequentados por todos de um modo geral: sala, wc social e cozinha.

plantas de casas populares de 2 quartos
Planta de casa popular com 1 banheiro compartilhado

plantas de casas populares de 2 quartos

plantas de casas populares de 2 quartos
É possível levantar uma casa em uma área pequena

Mesmo que seja uma casa popular e naturalmente pequena, é bacana valorizar o espaço dos dormitórios.

Considere a área para circulação dentro de cada quarto, com o objetivo de proporcionar mais aconchego para os moradores.

A saber, ainda que seja um projeto simples, dá para você imaginar uma ou duas suítes. A ideia de unir o quarto com o banheiro é sempre interessante para a funcionalidade do dia a dia e também pode ser uma boa para economizar espaço.

Casa completa popular com dois quartos
Casa completa popular com dois quartos
Casa completa popular com dois quartos
Fique atento em todas as medidas
  • Sala integrada

Uma saída para quem deseja construir uma casa pequena é integrar a sala de estar com a de jantar.

Dessa forma, você aproveitará o espaço da sala, que é um ambiente de muita interação com familiares e convidados, para formular também a copa, ou o que chamamos de sala de jantar.

Analise o projeto visando deixá-lo bem condizente com a dinâmica na cozinha da casa. Ou seja, mesmo que a mesa de jantar fique em um local separado, na sala,  permita que o acesso à cozinha seja super facilitado.

Afinal, ninguém quer dar volta na casa inteira com panelas e louças na mão para ‘montar’ a mesa de jantar, não é mesmo?

Planta para você que deseja uma casa simples e aconchegante
Planta para você que deseja uma casa simples e aconchegante
Exemplo de planta de casa popular com sala e cozinha compartilhadas
Exemplo de planta de casa popular com sala e cozinha compartilhadas
  • Importância das áreas externas

As plantas de casas populares com 2 quartos mostram, a priori, a capacidade de elaborar um projeto completo, funcional e aconchegante com pouco espaço interno.

Porém, alguns modelos que você pode ver aqui nesse post faz também referência a áreas externas possíveis nesse tipo de planta.

Você pode aproveitar para fazer uma pequena varanda, a área de serviço com o espaço para pendurar roupas, bem como um jardim, caso seja seu desejo.

Bom, confira todas as demais plantas de casas populares com 2 quartos:

planta de casa com Sala de jantar e sala de estar juntas
Sala de jantar e sala de estar juntas

plantas de casas populares 3 quartos Planta De Casas Pequenas 3 Quartos Imagens De Plantas Baixas De
plantas de casas populares 3 quartos

Ideia de como organizar a planta da casa popular
Ideia de como organizar a planta da casa popular
Planta baixa ideal para casa popular, bem como econômica
Planta baixa ideal para casa popular, bem como econômica
Uma casa popular pode ficar super completa
Uma casa popular pode ficar super completa
Planta de casa simples com 2 quartos
Planta de casa simples com 2 quartos
A planta realista ajuda na formulação de sua casa
A planta realista ajuda na formulação de sua casa
planta de casa popular
Veja casa com a copa e a sala no mesmo ambiente
A planta para casa com 2 quartos pode englobar a garagem também
A planta para casa com 2 quartos pode englobar a garagem também
Confira o modelo da casa popular acima e a planta abaixo
Confira o modelo da casa popular acima e a planta abaixo

Com 3 Quartos

As plantas de casas populares com 3 quartos são também muito procuradas por pessoas que desejam construir seu próprio lar no Brasil.

Trata-se de um modelo de projeto mais elaborado. Ele que possui uma estrutura maior, pois irá acomodar mais pessoas dentro da casa.

Do mesmo modo que o tópico anterior, podemos ressaltar que o 3º quarto pode ser destinado a outras funcionalidades. Você pode fazer dele um home office, por exemplo, um ateliê de costura, um espaço de brinquedos ou um quarto de hóspedes simplesmente.

Planta casa popular com 3 quartos
Planta de casa popular com 3 quartos
Planta de casa pequena e com 3 dormitórios
Planta de casa pequena e com 3 dormitórios

Geralmente, casas que contêm 3 dormitórios possuem 1 deles em formato de suíte. Isto é, um quarto projeto juntamente com o banheiro.

Caso haja espaço, no entanto, você pode pensar na possível construção de 2 ou até 3 suítes, proporcionando mais conforto para os moradores.

casa com 3 quartos
O terceiro quarto pode se tornar de hóspedes
Casa estreita com 3 dormitórios
Casa estreita com 3 dormitórios
Plantas de casas populares com 3 dormitórios
Considere a área da varanda

É importante lembrar que, mesmo que se construa 1 suíte, a residência necessitará de um banheiro social. Aquele que será utilizado por toda a família, bem como os convidados.

Esse banheiro social deve ficar bem localizado dentro da casa. Além disso, dá também para incluir um lavabo, que seria o banheiro somente com o vaso sanitário e a pia – sem o chuveiro / a banheira.

Confira então nossa seleção completa de plantas de casas populares com 3 dormitórios:

Plantas de casas populares com 3 dormitórios
Sala com a copa e 3 dormitórios
Plantas de casas populares com 3 dormitórios
É possível pensar em suítes
Plantas de casas populares com 3 dormitórios
Preste atenção na área dos dormitórios
Plantas de casas populares com 3 dormitórios
A área dos dormitórios é importante para acomodar confortavelmente
Plantas de casas populares com 3 dormitórios
É essencial fazer a divisão pensando na dinâmica da família
Plantas de casas populares com 3 dormitórios
Casa popular com 3 dormitórios compactos
casa popular com 3 dormitórios
Leve em conta também a área para o jardim
casa popular com 3 dormitórios
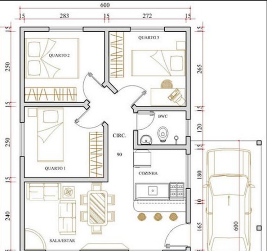
Casa popular com 3 dormitórios, bem como garagem para 1 carro
Casa popular com 3 dormitórios e sala compartilhada
Casa popular com 3 dormitórios e sala compartilhada
Casa popular com 3 dormitórios e sala compartilhada
Pense na dinâmica da movimentação nos espaços
Casa popular com 3 dormitórios
Você pode fazer uma suíte e dois dormitórios
Casa popular com 3 dormitórios
Não se esqueça de projetar a lavanderia
Casa popular com 3 dormitórios
Casa popular aconchegante com 3 dormitórios
Casa popular com 3 dormitórios
Casa popular com 3 dormitórios, bem como garagem para 2 carros
Casa popular com 3 dormitórios
Você pode dividir a área dos quartos das demais
Casa popular com 3 dormitórios
Sugestão de casa popular com 3 dormitórios
Casa popular com 3 dormitórios
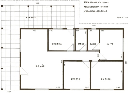
Dica de casa popular com 3 dormitórios, bem como cozinha americana
Casa popular com 3 dormitórios
Dá também para criar uma varanda gourmet

O que achou de nosso posts sobre plantas de casas populares? Esperamos que tenha se inspirado e que consiga dar um passo à frente rumo ao sonho de construir sua residência!

Confira também outros conteúdos do Decorei!

Até uma próxima!


você pode gostar também

Deixe uma resposta

Seu endereço de email não será publicado.